服务热线:400-821-5008
: 2018-06-23 09:40:18 4316
随着港剧以及电影的流行,
港式穿衣风格、饮食文化,
甚至港式风格的家装也开始流行起来,
具有现代气息的港式风格,
带着与生俱来的都市范,已经备受潮人喜爱。

有种港式风格,如港式基调的电影,
从配乐点缀到画面呈现每一帧都是大片即视感,
家居饰品点染氛围,烘托格调,
干练的线条与冷静的色彩相互碰撞,安于其中回味无穷。
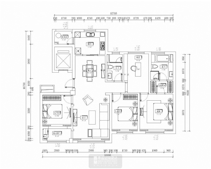
项目名称:明州半岛
面积:139平方
风格:现代港式
业主需求:一家三口居住,业主年轻,居家空间需要现代精致感。

△客厅
以现代港式为基调,运用黑色与黄色来营造现代时髦的氛围,线条干净简洁。
深色为客厅背景色,明黄色作为跳色。整个空间前卫活泼,不失大气,又带着休闲宜居感。

△客厅一角

△餐厅
与客厅在同一空间,沿用客厅色调,家具摆放简洁大方,饰品恰到好处,作为提亮空间的点睛之笔。

△书房
原来因户型限制会体现狭小感的问题,通过通透的书柜得到了很好的解决,
大胆采用橙色书桌书椅和动物皮毛地毯,打造出了主人家富有质感的生活。

△主卧
用柔和的砂岩色作为主卧的背景色调,满足休憩时所需要的沉静之感,
在浓郁的港式风的主基调下又营造出柔和温暖的空间氛围。

△户型图
![]()
港式奶茶也是港风的一大特色,醇香浓厚,滋味绵长。
轻奢港式也如此,在满足居住需求的同时,就如一件艺术品,内敛低调中藏着雅致。
项目名称:雅戈尔明州半岛
面积:170平方
房型:精装
风格:港式轻奢
业主要求:体现沉稳气派
自然简洁,展现出的是港式家居风格。
自然的木质色调使客厅充满休闲的氛围,是快节奏都市生活的休恬的港湾。

△客厅

△客厅
客厅的以浅咖色为主调,营造一个沉稳有格调的氛围。
浅蓝色的沙发配合米色的两人位,展现出和谐宁静的家居生活气氛。
电视墙处理相当简洁而富品味,色调古旧的电视柜是客厅的焦点所在 。

△餐厅
大理石餐桌加上米色的餐椅,搭配蓝色装饰画,整个空间活跃不失沉稳。

△主卧
银灰色的背景硬包衬托了这张意式的床,使得互相融合在一起,
黑色的主吊灯也在这种浅灰的主色中脱颖而出,增添无限的色彩。

△男孩房
宝蓝色的硬包,既符合青少年的色彩喜好,也不让原有的地板色影响整个空间的色彩,
同时增加一把黄色的单人休闲椅,使得在进入卧室后不会一味的被背景所吸睛。

△户型图
设计师详情:


港式风格越探究越有味道
独特而难忘
潮流而又不失典雅
现代而又不失品位
若您也喜欢,不如交给申远
为您打造港式新风尚
![]()
选择申远 · 选择品质
开启美好生活
往期精彩:

美好生活服务商
上海杨浦区民府路916号B座(申远集团大厦)
装修咨询热线:400-821-5008
申远空间设计▼
家装专线:021-65030166
工装专线:021-55783918
精装专线:021-55783968
坤凌园林:021-55783800
软装专线:400-821-6008
申远分公司▼
北京分公司:400-820-5885
成都分公司:400-969-8909
杭州分公司:400-057-1996
苏州分公司:400-828-2608
宁波分公司:400-826-5993
南京分公司:400-178-6699
全国服务热线:400-820-5885
分享到: 查看申远更多资讯 >>